decorative background image

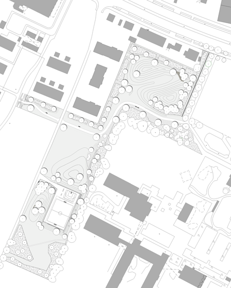
Extensive Grünanlage mit weitgehend naturnaher Prägung und integriertem Jugendspielbereich, eingefügt an einer Schnittstelle, wo verschiedenartige Bau- und Nutzungsstrukturen nahe des Truderinger Zentrums aufeinandertreffen. Bislang weitgehend sich selbst überlassene Ränder und Zwischenräume werden in der Gestaltung aufgenommen und im Sinne eines erweiterten Saums, der zahlreiche Nischen für die Stadtnatur bietet, weiterentwickelt.

Zwischen Bürgerhaus mit Festwiese, Schulzentrum, Sportanlagen und mäßig dichter Wohnbebauung ist im Bereich einer vor langer Zeit aufgegebenen Bahntrasse ein unbebauter Streifen verblieben, der teils landwirtschaftlich genutzt wird, teils brachgefallen ist. Vorhandene wertvolle Biotopstrukturen sollen erhalten und auf der Grundlage eines im Vorfeld erarbeiteten Pflege- und Entwicklungsplanes gefördert und weiterentwickelt werden, teils durch Ausweisung von naturschutzrechtlichen Ausgleichsflächen. Mit wenigen Wegen erschlossen, entsteht sukzessive eine einfache innerörtliche Grünanlage, mit der Möglichkeit, Natur wohnortnah zu erleben und zugleich ihre Prozesse zu schonen.

Etwas eingetieft in das flache Gelände liegt ein Jugendspielbereich mit ganzjährig bespielbarem Bolzplatz und Streetballfeld; ein Rodelhügel hinter einer neu errichteten Lärmschutzwand bildet das Zentrum eines modellierten Wiesengeländes, das von strukturreichen Feldgehölzen gefasst wird und sich zu einem informellen und naturnahen Spielraum für Kinder entwickeln kann. Blumenreiche Wiesen auf magerem Boden, ein Gehölzsaum mit Wildobst, zahlreiche Einzelbäume und Baumgruppen, Gebüsche und Krautsäume sind die Elemente, die aus dem vorhandenen Bestand aufgenommen und als ökologische Bausteine zur Förderung der Biodiversität in der Gestaltung umfassend berücksichtigt wurden. Das erlebt man am besten, wenn man einem alten Trampelpfad folgt, der bewusst erhalten und am Jugendspielplatz neu angebunden wurde.

Standort: Wasserburger Landstraße/Horst-Salzmann-Weg, München-Trudering
Auftraggeber: Landeshauptstadt München, Baureferat Gartenbau
Planung Freianlagen (Leistungsphasen 2-9 HOAI), 18.000 m²
Realisierung 2018 - 2021